Trilocale in vendita

Corsico, Via Alzaia Trieste
€ 219.000
Prezzo aggiornato
3 locali 3 locali
81 Mq 81 Mq
1 bagno 1 bagno

Trilocale in vendita

Corsico, Via Alzaia Trieste

Descrizione annuncio

Corsico, Via Alzaia Trieste:

una delle location più suggestive e richieste dell’hinterland milanese, grazie alla presenza del Naviglio Grande che fa da cornice al contesto e lungo il quale si può passeggiare immergendosi in un’atmosfera unica e rilassante.

In questo contesto fiabesco proponiamo un bellissimo trilocale a piano rialzato.

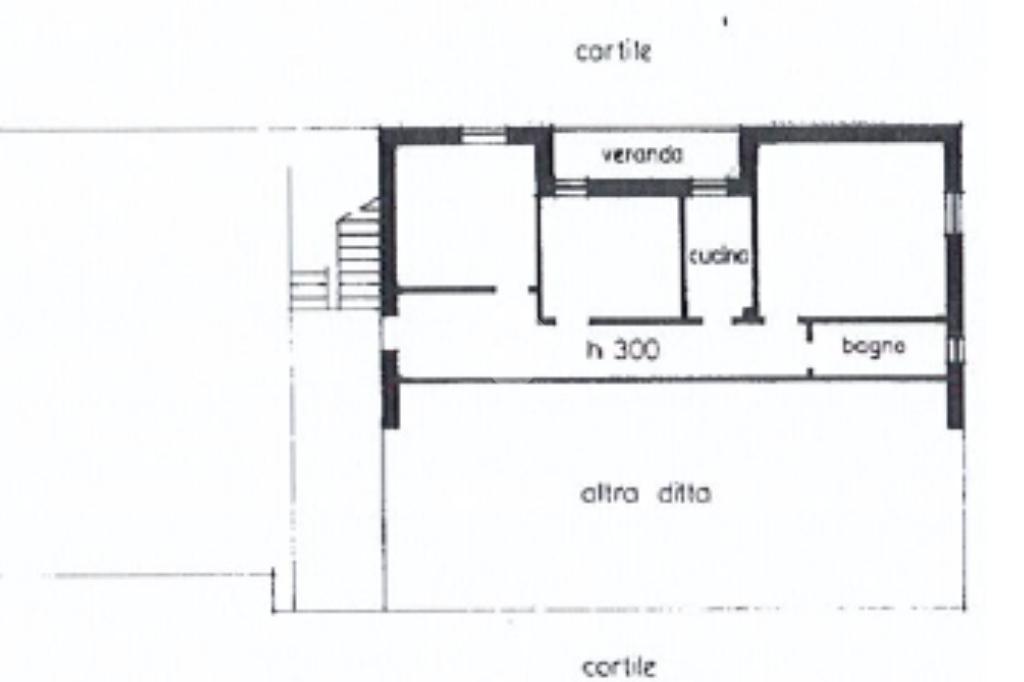
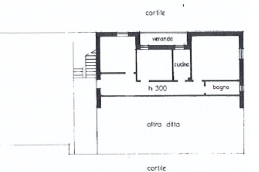
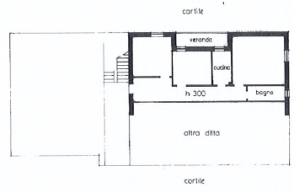
L’appartamento è stato completamente ristrutturato nel 2019 ed è così composto: Ingresso, ampio soggiorno luminoso, veranda, cucina separata, due ampie camere da letto e un bagno finestrato.

A completare la soluzione giardino condominiale e cantina di pertinenza.

L’unità immobiliare si trova a ridosso dei principali mezzi di trasporto che collegano la zona con Milano come i bus 325326 che portano direttamente alla fermata della nuova M4 San Cristoforo e la M2 Romolo, la stazione dei treni e il tram 14 che arriva direttamente al Duomo di Milano.

La presente descrizione è puramente indicativa e non rappresenta un elemento contrattuale.

Per ulteriori informazioni contattateci al numero 0249376672.

Mostra tutto

Nelle vicinanze

Trasporto pubblico Trasporto pubblico
Bisceglie
Bisceglie
2,5 Km
Inganni
Inganni
2,9 Km
Milano San Cristoforo
Milano San Cristoforo
2,0 Km
Via Gonin - Via Molinetto di Lorenteggio
Via Gonin - Via Molinetto di Lorenteggio
1,2 Km
Lorenteggio
Lorenteggio
1,2 Km
Ricariche auto elettriche Ricariche auto elettriche
LIDL Buccinasco
1,4 Km
EnelX EVAD Sede Enel Corsico
1,6 Km
Lidl Milano Lorenteggio
1,7 Km
Centro Commerciale La Torre - distributore IP
2,0 Km
U2 Buccinasco | EnelX
2,1 Km
Scuole Scuole
Scuole
380 m
Omnicomprensivo
840 m
Scuola Media di Via Tiziano
1,3 Km
Scuola di Via Mascherpa
1,4 Km
Scuola primaria "1° Maggio"
1,4 Km
Farmacia Farmacia
Farmacia
540 m
Farmacia Trieste
910 m
Farmacia Spirito Santo
1,6 Km
Farmacia Tessera
1,6 Km
Farmacia Comunale
1,7 Km
Ospedali Ospedali
Casa di Cura Ambrosiana
2,2 Km
Supermercati Supermercati
coop corsico
570 m
Penny Market
1,0 Km
Esselunga di Buccinasco
1,1 Km
Conad di via Gonin
1,2 Km
Supermercati
1,2 Km
Negozi Negozi
Pancafé
130 m
Negozi
820 m
Antonio Fusco
880 m
Pane Dolci Sapori e Sfizi Fichera
1,1 Km
Q8 Shop
1,2 Km
Bar Bar
Bar
790 m
Naturalmente Gelato
1,0 Km
Downtown
1,2 Km
King Toast Cafè
1,2 Km
Erica
1,4 Km
Ristoranti Ristoranti
Enoteca Il Grappolo
80 m
Prosciutteria dello gnocco fritto
90 m
Ristoranti
90 m
Ristopizza La Coccinella
140 m
Pizza Bis
730 m
Mostra tutto

Caratteristiche

Rif.:
61122959
Piano:
Basso di 4
Totale piani:
4
Posti auto:
1
Balconi:
1
Camere da letto:
2
Mostra tutto
Prezzo Prezzo
€ 219.000
Rata mutuo Rata mutuo
€ 1.034 / mese
Spese annue Spese annue
€ 1.800
Proponi il tuo prezzoProponi il tuo prezzo

Classe Energetica

E
E
E
E
E
E
E
E
E
EP invernale del fabbricato:
EP estiva del fabbricato:
Anno di costruzione:
1980
Riscaldamento:
Centralizzato
Tipo impianto:
A radiatori
Tipo alimentazione:
Metano

Prezzo ridotto di €1 (1%%)

Ti interessa visionare l'immobile?

Fissa un appuntamento  Fissa un appuntamento

Richiedi informazioni

Clicca su Leggi per aprire l'informativa
* Questi campi sono obbligatori

Calcola il tuo mutuo

Semplice e senza impegno
Anticipo

( % )
Mutuo

( % )

pochi semplici passi

inserisci i tuoi dati
Questionario completato
Grazie per aver richiesto un appuntamento senza impegno con un nostro Consulente del Credito e Assicurativo.

Hai inserito correttamente tutti i dati necessari e a breve riceverai una e-mail con un link da convalidare per inviare i tuoi dati.
Affiliato
Corsico Case Srl
Via Niccolò Copernico, 43 20094 Corsico (MI)

Il nostro staff


  • Francesco Farina
    Collaboratore

  • Lorenza Fortunato
    Coordinatrice

  • Matteo Ariante
    Responsabile
Via Niccolò Copernico, 43 20094 Corsico (MI)
Zona: Corsico
Mostra su mappa
Orari: lun-ven 09.00-12.30 14.30-20.00 sab 09.00-12.30 12.30-18.00
Affiliato
Corsico Case Srl
Via Niccolò Copernico, 43 20094 Corsico (MI)

2025 Tecnocasa Franchising S.p.A. - P. IVA 08365160152 - Via Monte Bianco 60/A 20089 Rozzano (MI). Ogni agenzia ha un proprio titolare ed è autonoma. Privacy policy | Policy utilizzo | Cookie policy