Trilocale in vendita

Corsico, Via Niccolò Copernico
€ 245.000
3 locali 3 locali
95 Mq 95 Mq
1 bagno 1 bagno

Trilocale in vendita

Corsico, Via Niccolò Copernico

Descrizione annuncio

Corsico, Via Copernico:

Una delle vie più apprezzate di Corsico, grazie alla sua vicinanza a Milano in un contesto residenziale caratterizzato da tranquillità, servizi e aree verdi.

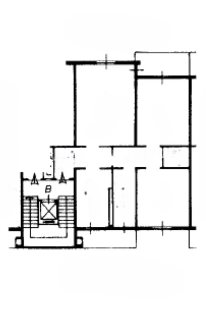
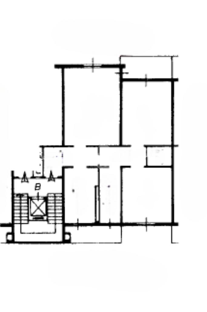
È in questo quartiere che proponiamo un luminoso trilocale sito al secondo piano con ascensore e servizio di portineria dal lunedì al sabato.

La soluzione è così composta: ingresso su disimpegno, cucina abitabile con balcone, grande soggiorno con balcone, due camere da letto e un bagno finestrato.

A completare la soluzione un comodo ripostiglio. una cantina di pertinenza e un grande giardino condominiale sempre curato.

L’unità immobiliare si trova a ridosso dei principali mezzi di trasporto che collegano la zona con Milano come i bus 325 e 326 che portano direttamente alla fermata della nuova M4 San Cristoforo e la M2 Romolo, la stazione dei treni e il tram 14 che arriva direttamente al Duomo di Milano.

La presente descrizione è puramente indicativa e non rappresenta un elemento contrattuale.

Per ulteriori informazioni contattateci al numero 0249376672.

Mostra tutto

Nelle vicinanze

Trasporto pubblico Trasporto pubblico
Bisceglie
Bisceglie
2,0 Km
Inganni
Inganni
2,4 Km
Milano San Cristoforo
Milano San Cristoforo
1,5 Km
Via Gonin - Via Molinetto di Lorenteggio
Via Gonin - Via Molinetto di Lorenteggio
590 m
Lorenteggio
Lorenteggio
600 m
Ricariche auto elettriche Ricariche auto elettriche
Lidl Milano Lorenteggio
1,1 Km
LIDL Buccinasco
1,7 Km
Centro Commerciale La Torre - distributore IP
1,9 Km
A2A Isola Digitale Bisceglie
2,0 Km
EnelX EVAD Sede Enel Corsico
2,1 Km
Scuole Scuole
Scuole
170 m
Scuola elementare Gaetano Casati
1,1 Km
Omnicomprensivo
1,1 Km
Istituto Comprensivo Alessandrini
1,3 Km
Scuola Media di Via Tiziano
1,5 Km
Farmacia Farmacia
Farmacia
260 m
Farmacia Trieste
1,5 Km
Farmacia Spirito Santo
1,6 Km
San Cristoforo
1,6 Km
Farmacia Camera
1,8 Km
Ospedali Ospedali
Casa di Cura Ambrosiana
2,1 Km
Supermercati Supermercati
Conad di via Gonin
560 m
Supermercati
570 m
Esselunga di Buccinasco
790 m
Lidl
1,1 Km
coop corsico
1,2 Km
Negozi Negozi
Pancafé
610 m
Negozi
620 m
Gespan
790 m
Pane Dolci Sapori e Sfizi Fichera
1,2 Km
Q8 Shop
1,2 Km
Bar Bar
Downtown
610 m
King Toast Cafè
620 m
Bar
640 m
Mama's
830 m
Naturalmente Gelato
840 m
Ristoranti Ristoranti
Ristoranti
520 m
Prosciutteria dello gnocco fritto
550 m
Ristopizza La Coccinella
600 m
Enoteca Il Grappolo
610 m
Don Girò
630 m
Mostra tutto

Caratteristiche

Rif.:
61122946
Piano:
2 di 9 con ascensore (Piano basso)
Balconi:
2
Camere da letto:
2
Arredamento:
Assente
Condizionamento:
Autonomo
Mostra tutto
Prezzo Prezzo
€ 245.000
Rata mutuo Rata mutuo
€ 1.156 / mese
Spese annue Spese annue
€ 2.700
Proponi il tuo prezzoProponi il tuo prezzo

Classe Energetica

E
E
E
E
E
E
E
E
E
Anno di costruzione:
1975
Riscaldamento:
Centralizzato
Tipo impianto:
A radiatori
Tipo alimentazione:
Metano

Ti interessa visionare l'immobile?

Fissa un appuntamento  Fissa un appuntamento

Richiedi informazioni

Clicca su Leggi per aprire l'informativa
* Questi campi sono obbligatori

Calcola il tuo mutuo

Semplice e senza impegno
Anticipo

( % )
Mutuo

( % )

pochi semplici passi

inserisci i tuoi dati
Questionario completato
Grazie per aver richiesto un appuntamento senza impegno con un nostro Consulente del Credito e Assicurativo.

Hai inserito correttamente tutti i dati necessari e a breve riceverai una e-mail con un link da convalidare per inviare i tuoi dati.
Affiliato
Corsico Case Srl
Via Niccolò Copernico, 43 20094 Corsico (MI)

Il nostro staff


  • Francesco Farina
    Collaboratore

  • Lorenza Fortunato
    Coordinatrice

  • Matteo Ariante
    Responsabile
Via Niccolò Copernico, 43 20094 Corsico (MI)
Zona: Corsico
Mostra su mappa
Orari: lun-ven 09.00-12.30 14.30-20.00 sab 09.00-12.30 12.30-18.00
Affiliato
Corsico Case Srl
Via Niccolò Copernico, 43 20094 Corsico (MI)

2025 Tecnocasa Franchising S.p.A. - P. IVA 08365160152 - Via Monte Bianco 60/A 20089 Rozzano (MI). Ogni agenzia ha un proprio titolare ed è autonoma. Privacy policy | Policy utilizzo | Cookie policy